Architectural Works
+ Plus
About
Olivia Chan
Architectural Works
+ Plus
About
2023
RE:GROWTH // SUSTAINABILITY
4B Comprehensive Design Studio.
Site Orientation. Solar and Wind Diagram
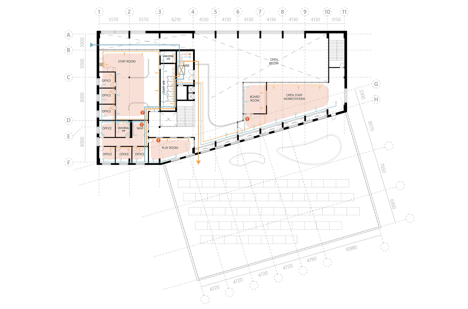
Sustainability Strategies. Left to Right: Parti, Level 1 Plan, Level 2 Plan
Adaptive Reuse Strategy. Use of existing building on-site.
<< RE:GROWTH // PROJECT PAGE
RE:GROWTH // DRAWINGS >>
↑
Back to Top