Architectural Works
+ Plus
About
Olivia Chan
Architectural Works
+ Plus
About
2023
RE:GROWTH // DRAWINGS
4B Comprehensive Design Studio.
Site Context and Site Plan
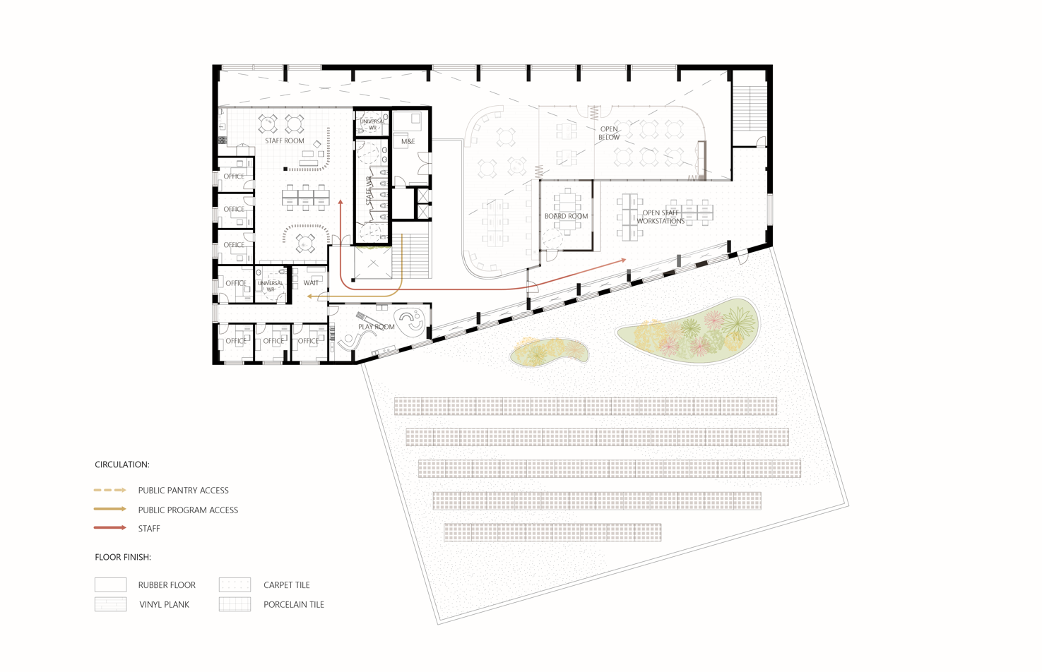
Level 1 Floor Plan and Level 2 Floor Plan with Circulation Diagrams
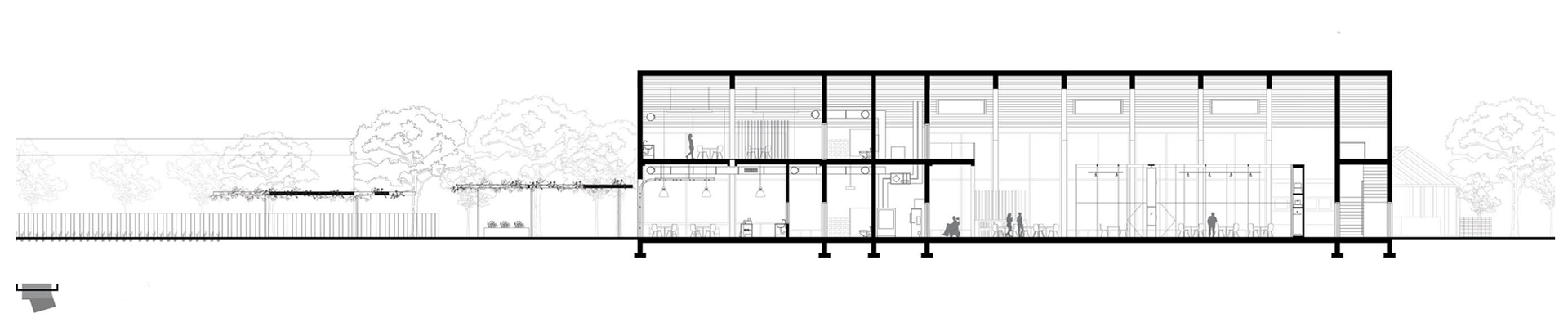
Section AA
Section BB
South Facing Elevation
West Facing Elevation
<< RE:GROWTH // PROJECT PAGE
RE:GROWTH // SUSTAINABILITY >>
↑
Back to Top